• Location

Appartement Studio - 39m² - 890€ CC /mois

Le Blanc Mesnil

Description

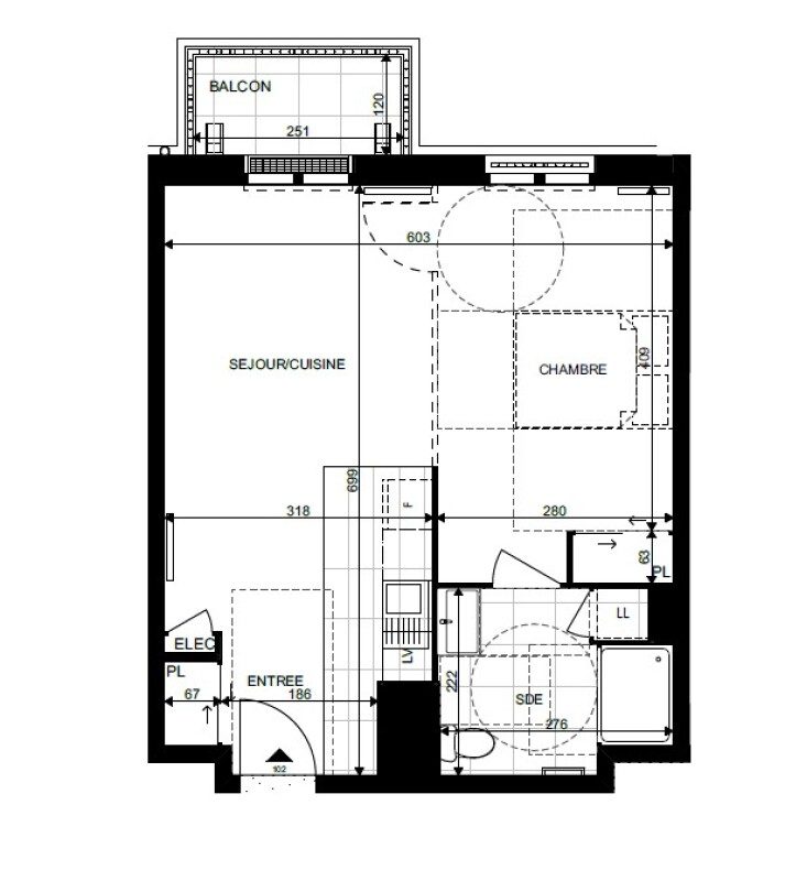
102 - L'ABSOLU : CHARMANT STUDIO AVEC BALCON ET BELLE LUMINOSITÉ Ce charmant T1 de 39,96 m² se situe au premier étage dEURune résidence récente et calme. Son balcon de 3 m² orienté sud offre une belle lumière naturelle toute la journée. La pièce principale, spacieuse et conviviale, est dotée d'une cuisine moderne équipée (four, plaques vitro, hotte, meubles de rangement). La salle d'eau, sobre et élégante, dispose d'un meuble sous vasque et dEURun sèche-serviettes. Le sol en parquet apporte chaleur et élégance à l'ensemble. Parking privatif en sous-sol. Résidence BBC, à proximité immédiate du RER B, des commerces et des axes A1/A3. Le chauffage, l'eau chaude et l'eau froide sont inclus dans les charges. Consommation d'énergie totale entre 208-282EUR par an (prix moyens des énergies indexés au 2021.2022.2023) Les informations sur les risques auxquels ce bien est exposé sont disponibles sur le site Géorisques : www. georisques. gouv. fr

Résumé

  • Type Studio
  • Surface 39 m²
  • Loyer 890€  CC /mois

Localisation

Détails

  • Référence 10807
  • Type Studio
  • Surface habitable 39m²
  • Etage 1
  • Loyer 780€ /mois HC
  • Provisions sur charges 110€
  • Modalité de récupération des charges locatives Provision avec régularisation annuelle
  • Honoraires à la charge du locataire 519.48€
  • dont honoraires état des lieux 119.88€
  • Dépôt de garantie 740€

Les plus

  • Ascenseur

Diagnostic énergétique du bien

DPE GES

Vous êtes intéressé(e) par cette annonce ?
Veuillez nous contacter via ce formulaire de contact

    *Données obligatoires - Les informations recueillies à partir de ce formulaire sont enregistrées et transmises aux employés habilités de COSIALIS , en charge du traitement de votre message, conformément à notre politique de confidentialité. Elles permettront de vous contacter et vous envoyer des informations complémentaires sur les offres de COSIALIS ajustées aux renseignements demandés. Conformément à la réglementation applicable en matière de données personnelles, vous disposez d’un droit d’accès, de modification, de rectification, de limitation, d'opposition, de restriction, de suppression et de portabilité des données qui vous concernent. Pour les exercer, il vous suffira de nous en faire la demande par courrier électronique à dpo@confiance-immobilier.fr. Nous vous informons que, du fait que nous avons recueilli vos coordonnées téléphoniques, vous avez le droit de vous inscrire sur la liste d’opposition au démarchage téléphonique (article L223-2 du code de la consommation / Ordonnance n°2016-301 du 14 mars 2016